ALFOMBRAS MEDITERRÁNEAS
REFORMA DE VIVIENDA PARA USO TURÍSTICO
Valencia | proyecto, obra y ambientación

Julio quería crear una atmósfera en la que los futuros habitantes de esta reforma sintieran la esencia mediterránea que escondía una vivienda de 1950 cercana al barrio de Ruzafa de Valencia.
Partiendo de la exigencia de un plazo de ejecución breve y un coste contenido, la intervención se centra en devolver el protagonismo a los suelos de mosaico cerámico borrando el ruido existente para crear un lienzo blanco y luminoso complementado con texturas tradicionales como los esmaltes cerámicos, el latón o los tejidos naturales.


APRENDIENDO DE LAS LIMITACIONES
En esta reforma, desarrollada en equipo con el promotor, dada la premura de los plazos, se partió de una idea global que fue materializándose durante la obra. Así, coordinando las compras y el trabajo de albañiles e industriales el proyecto se fue adaptando a las limitaciones impuestas por el presupuesto, los medios auxiliares y los suministros disponibles en el momento de la ejecución.



< desliza >


< desliza >
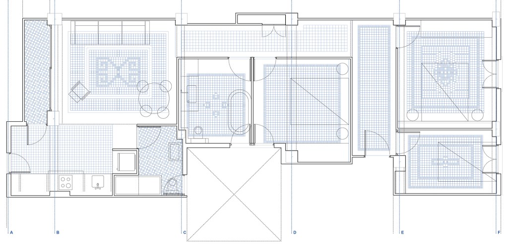
Un levantamiento detallado de la vivienda permitió optimizar las soluciones constructivas para incorporar un nuevo baño a la vivienda o renovar la instalación de fontanería y electricidad. Para ello se generaron unas cámaras técnicas en los puntos con mayor contenido de instalaciones reduciendo la necesidad de rozas y resolviendo simultáneamente elementos como cabeceros o el espejo en el baño.



CRÉDITOS
construcción | Apartamentos de Pradas
equipo | Iván Paul, Julio Haya,
fotografías | Iván Paul, IGARKA
+info | Airbnb











