MEDIANERA DENSA
REHABILITACIÓN DE ÁTICO
Valencia | proyecto y obra

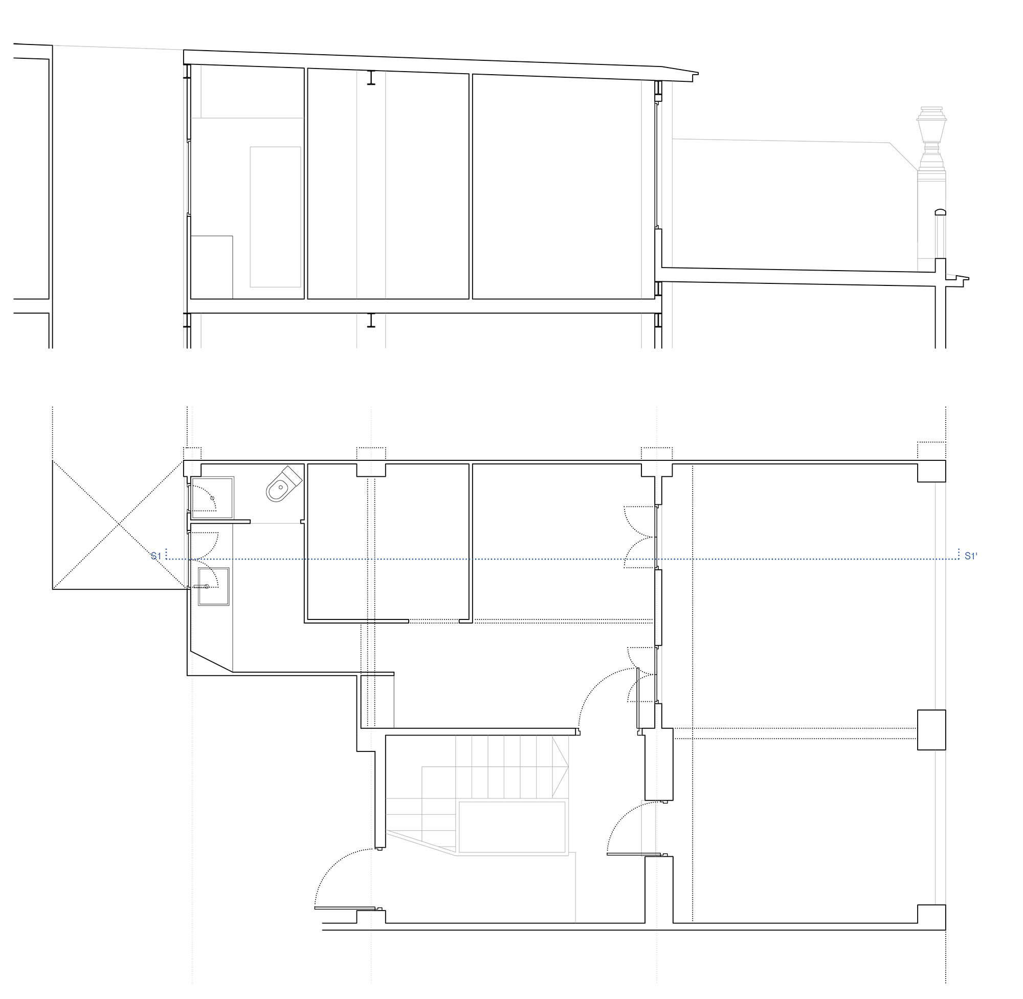
Julio quería transformar los 24 m2 de esta vivienda de porteria en una privilegiada atalaya desde la que disfrutar de las vistas del casco histórico de Valencia.
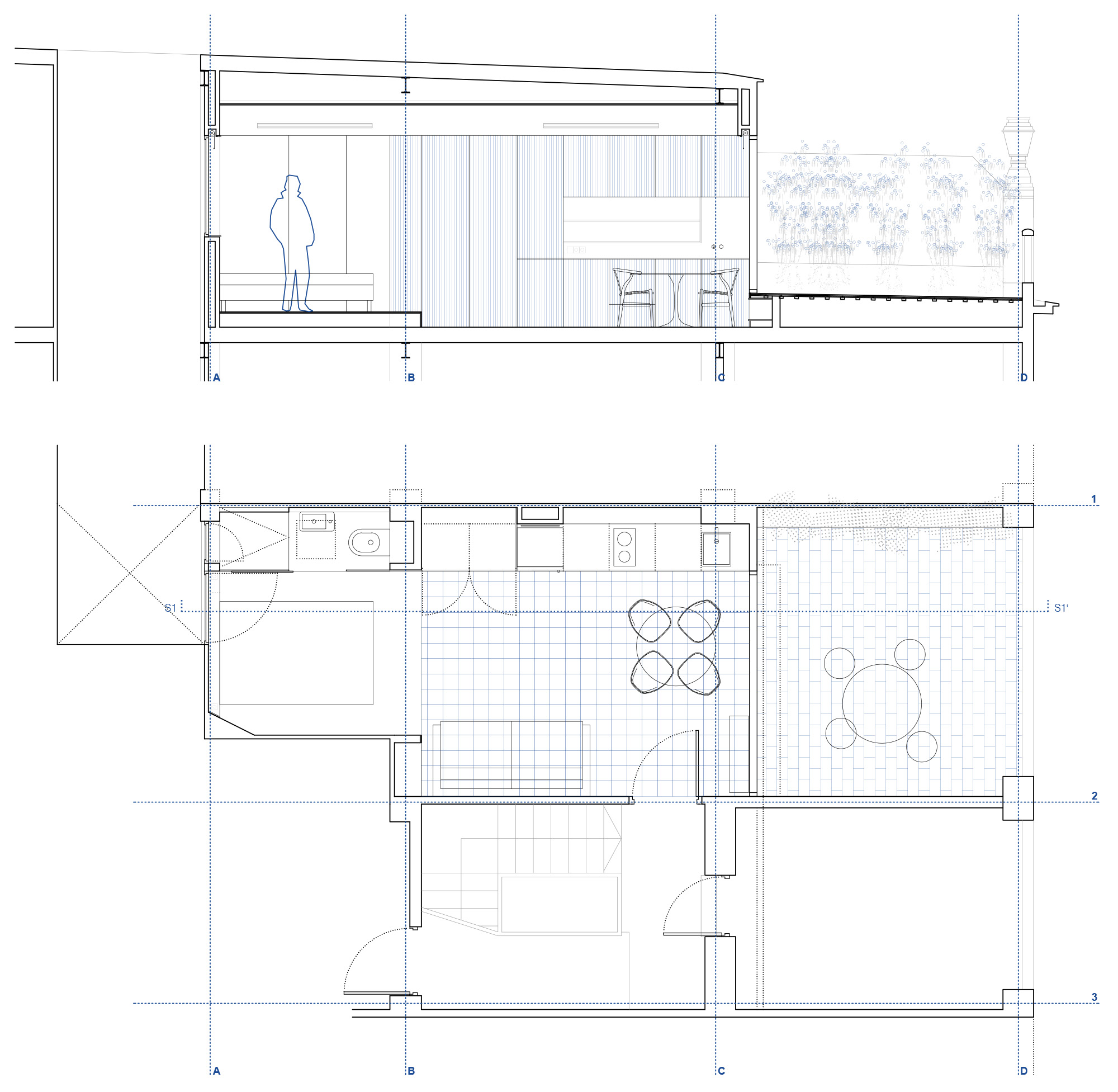
Para ello, la reforma construye los espacios de servicio en una densa franja a lo largo de la medianera, liberando el espacio principal que se expande al exterior gracias al gran ventanal a la terraza.



< desliza >
AJUSTANDO AL CENTÍMETRO
Las reducidas dimensiones de la vivienda original supusieron un reto a la hora de incorporar todos los elementos necesarios sin invadir el espacio principal. Para ello se definió con detalle la banda adosada a la medianera incorporando en ella el baño, la cocina y el espacio de almacenaje, así como las instalaciones de fontanería, saneamiento, electricidad y climatización.


La materialidad refuerza la estrategia del proyecto. Por un lado, se enfatiza el carácter autónomo de la banda de servicio panelándola con tablero chapado al exterior y piezas porcelánicas de gran formato al interior.
Por otro, en el espacio libre se generan dos ámbitos recuperando la alfombra de baldosas hidráulicas en la zona de día y creando un pódium revestido en microcemento en la zona de noche que resuelve simultaneamente el paso de instalaciones.




< desliza >
CRÉDITOS
construcción | Apartamentos de Pradas
equipo | Iván Paul, Julio Haya,
fotografías | Iván Paul
+info | Apartamentos de Pradas | ARQUIA
cerámica | TAU varenna
luminarias | Incolamp
mecanismos | Jung LS 990
carpintería | INSCA
encimeras | TAU varenna
sanitarios | Amado Salvador
grifería | TRES Max






















