MATERIALES ELEMENTALES
REHABILITACIÓN DE PLANTA BAJA
Valencia 2021 | proyecto y obra

Julio quería convertir un pequeño y degradado bajo comercial del primer ensanche de Valencia en una vivienda en la que recibir a sus huéspedes rodeados de tradición mediterránea.
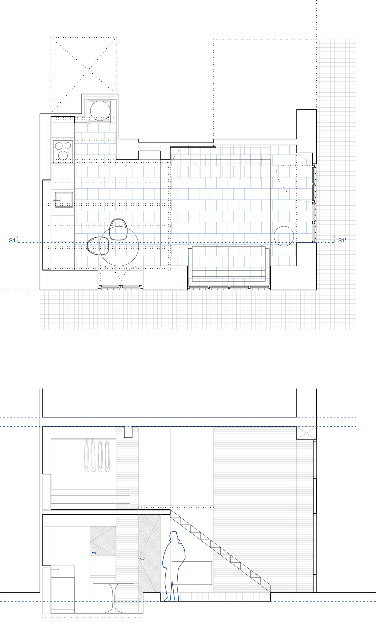
Así, el proyecto se sirve de la gran altura del local para desarrollar en 4 niveles el acceso, el salón, la cocina y la zona de noche. El forjado y los muros originales se dejan a la vista, mientras que para las nuevas soluciones se buscan materiales elementales que pongan en valor las técnicas constructivas tradicionales.




< desliza >
SOLUCIONES INTEGRADORAS
Para ordenar el reducido espacio, el proyecto baja a la pequeña escala integrando en cada decisión requerimientos técnicos, funcionales y espaciales. Así, los cambios de nivel crean bancos de obra, la disposición de las instalaciones resuelve los ajustes con los muros existentes, y la cocina se ejecuta de obra adaptándose a la geometría de los cerramientos.



Se recuperan técnicas constructivas y acabados tradicionales como el baldosín catalán, las fibras naturales, la madera, o la cerámica, buscando poner en valor materiales sencillos desde una lectura contemporánea de geometrías elementales. Es el caso del nuevo forjado, que se ejecuta desde la reinterpretación del existente, o del despiece del pavimento, que enfatiza el valor de cada pieza en el conjunto.




< desliza >
CRÉDITOS
construcción | Apartamentos de Pradas
equipo | Iván Paul, Julio Haya,
fotografías | Iván Paul
+info | Apartamentos de Pradas | Airbnb | ARQUIA
cerámica | CEHIMOSA
microcemento | Topciment
sisal | NATURTEX
carpintería | Fusteria Aleixandre Zarzo
luminarias | Incolamp
mecanismos | Jung LS 990
sanitarios | Sánchez Plá
grifería | TRES Max



















